ДЕТСКОЕ ИГРОВОЕ ОБОРУДОВАНИЕ PLAY «ВА-01.02»

Цена
Цена по запросу

Характеристики

Характеристики
  • Страна производства: Россия
  • Код изделия: Н145464
  • Серия: PLAY
  • Масса: 671 кг
  • Высота, см: 300 см
  • Ширина, см: 523 см
  • Длина (глубина), см: 581 см
  • Материал: металл
  • Размещение: на улице
  • Особенности комплектации: рукоход, горка, лестница
  • Возрастная группа: 4-6, 7-10, 11-14
  • Способ установки: бетонирование
  • Материал ската: металл
  • Сертифицированные по ГОСТу: есть
  • Серия бренда: Play
  • Категория:  Детские спортивные комплексы, Спортивные площадки, Лазалки, Для подростков

Описание

Устанавливается на детских уличных площадках.

Состоит из металлического каркаса, канатной сетки, открытой горки с защитными бортиками, лестницы и скалодромной панели. 

Комплекс наполнен различными элементами для лазания, представляя собой полосу препятствия. Делится на два пространства, соединенного рукоходом. 

Все крепежные элементы закрыты составными колпачками и заглушками. Поверхность нижних перекладин и ступеней — рифленая и антискользящая. Все материалы безопасны, устойчивы к различным погодным условиям, УФ-лучам и не поддаются влиянию коррозии.

Материалы:

  • Оцинкованная сталь, покрытая порошковой краской;
  • 6-прядный армированный канат 16 мм;
  • HDPE;
  • Композитный материал;
  • Нержавеющая сталь;
  • Полиамид.

Характеристики:

  • Возрастная группа: с 5 до 14 лет;
  • Масса изделия (кг): 671;
  • Высота свободного падения (мм): 2302;
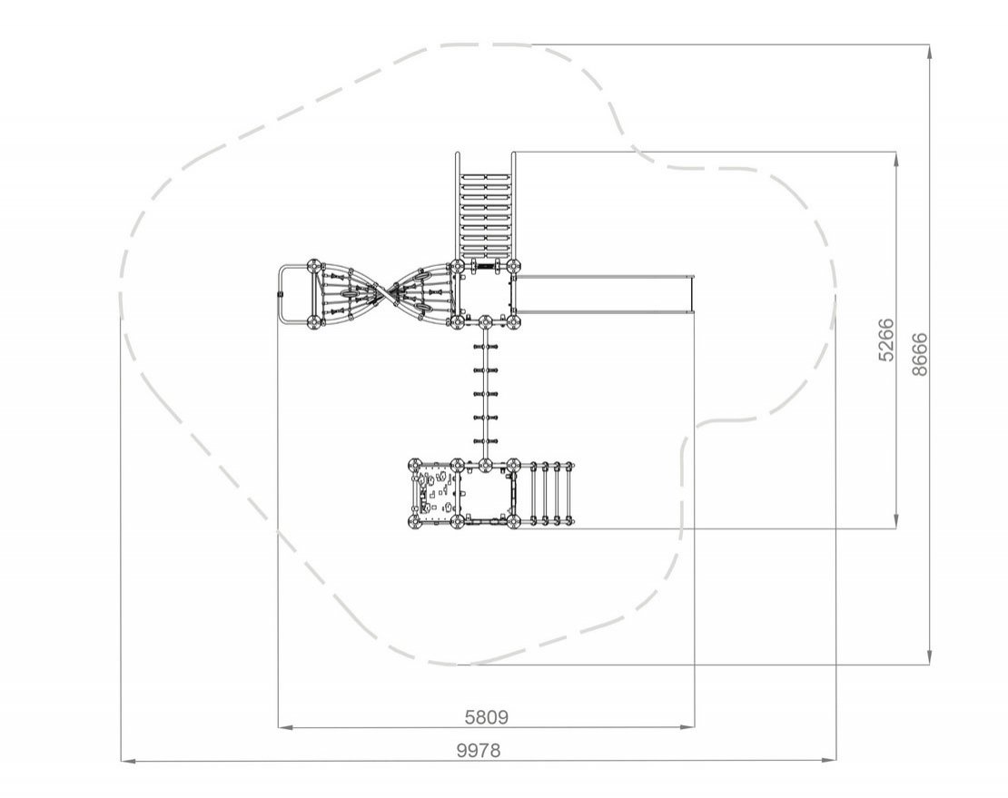
  • Габариты изделия (мм): 5809x5266х3002;
  • Размер зоны приземления (мм): 9978x8666.

Адрес пункта выдачи в Черкесске: ул Привокзальная, дом 1, корп. И.

Самовывоз в Черкесске
По адресу: Черкесск ул Доватора 19

Доставка без выгрузки по Черкесску 2 000 

Установка 542 040 

Усть-Джегута, Карачаевск, Зеленчукская, Учкекен, Сторожевая, Теберда, Псыж, Преградная, Кардоникская, Терезе, Хабез, Курджиново, Первомайское, Али-Бердуковский, Медногорский

По QR коду

Банковской картой на сайте

Рассрочка -- от Тинькофф

Безналичный платеж для юр.лиц

ВозвратВ течение 14 дней

Гарантия 12 месяцев

Продукция серии PLAY
Похожие изделия